銷售機械格栅除污機系列産品的廠家,公司具有良好的市場信譽,專業的銷售和技術服務團隊,憑着經營機械格栅除污機系列多年經驗..GSHZ機械格栅除污機工作原理
回轉式格栅清污機安裝現場
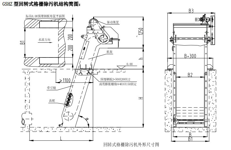
爲鏈傳動耙齒回轉式機械格栅除污機,适用于污水😁和雨水泵站及污水處理廠, 攔截和去除污水中㊙️較大雜質、漂浮物和懸浮物,減輕後續工序負荷。
.構造及工作過程
回轉式格栅清污機 機械格栅配件
是由若幹耙齒裝配在回轉鏈上,随着鏈條做回轉運動,将栅😵💫前攔截的污物帶出水面,并随着鏈條的回轉😥運動将污🙉物自卸到格栅後的輸送機中,液體則通過耙齒間形成的栅隙流過去, 整個工作狀态連續進行。
用範圍及機械格栅注意事項
是由一種的耙齒廠裝配成一組回轉格栅鏈。在電機減速器👱🏼♂️的😮💨驅動下,耙齒鏈進行逆水流方向回轉運動。
耙齒鏈運轉到設備的上部時,由于槽輪和彎軌的…導向👯🏾♂️,使每組耙齒之間産生相對自清運動,絕大部分固😥體物質靠重力落下。另一部分則依靠清掃器的反向🧑🏾🎄運動把粘在耙齒上的雜物清掃幹淨。
按水流方向耙齒鏈類同于格栅,在耙齒鏈軸上裝配的🥑️耙齒👩🏽🐰👩🏿間🧑🏽🎄隙可以根據使用條件進行選擇。當耙齒把流體中的固态懸浮物分離後可以保證水流暢通流過。整個工作過程是連續的,也可以是間歇的。
回轉式機械除污細格栅參數産品特點
1、粗細格栅合爲一體,節省設備投資,減少一台格栅👽井的占地😗面積。
2、粗細格栅一體機可滿足過濾精度的更高要求(小栅隙^可達3mm)。
3、具有自卸渣功能。
3、采用軸裝式減速機,傳動機構緊湊。
4、采用電機過載保護裝置,可靠。
5、操作簡單、故障率底、使用壽命長。
6、結構簡單、安裝維護方便。
7、自動化程度高,能實現遠程監控。
回轉式格栅清污機安裝現場
主要産品特點
(1)結構緊湊,整機性能好,通水面積大,運行穩定可靠。
(2)操作簡單,清污效果好,效率高,壽命長。
(3)維修方便,栅體水下部分無固定螺絲。
(4)格栅回轉循環、撈渣、除污工作實行全自動控制。
(5)具有自動、點動、急停、切斷等控制功能,便利運行與維護保養🛀🏼。
(6)每台清污機配置一套控制箱(戶内),電氣元件全部👱🏼♂️采💞用産品💕,并可根據用戶要求預留PLC接口。
(7)具有機械、電氣雙重過載保護裝置。
A.機械保護措施:在傳動鏈輪中設有銷,能在過載情況下瞬間切斷銷,預防傳動件損壞。
B.電氣保護:在電氣設計中設有過流保護,保證在設👱🏼♂️備出現故障ˇ後能有效地保護電機不被燒壞。
(8)清污機的鏈條采用不鏽鋼材料,鏈條的小轉輪也爲不鏽鋼😁材料;鏈條水下導向部分采用滑道方式👨🦰,無須加潤滑油😈,從而使鏈條不易被污物卡住。
(9)驅動裝置設有防護罩,既滿足室外安裝的要求,又便于檢查💯和維修;
(10)在鏈條和耙齒之間設置鏈闆,與設備的堵水邊角鋼形✍🏻成封閉結構,使齒耙鏈成爲封閉式鏈條,從而阻止了垃圾進入機🙈内運行軌道,防止鏈條梗死等故障;
(11)當齒耙鏈運行到設備後部時,齒耙間發生相對位移,進😁行自清理運動,栅渣落入栅渣小車中。因而不會發生堵塞現象,故日常維修的工作量很少且格栅底部不會有污物堆積死角。
(12)設備進行安裝時,與溝壁接觸的兩側用橡膠密封帶密封,并用👨🦰鋼壓條固定;底部耙齒鏈前設有一平闆及橡膠密封帶,達到設備與土建密封,防止水中雜質流👺漏。
(13)在設備上部兩側設有檢修孔闆,即使由于大的雜物使耙🤶🏾齒及😝其它部件損壞,也隻要在工作平台更換損壞的耙齒和零👿件,勿需水下維修,不影響過水~流量。
6.材質
格栅框架 碳鋼防腐
耙齒 不鏽鋼(SS304)
傳動部件 不鏽鋼(SS304)
7. 驗收标準
設計、制造、試驗及驗收均執行建設部行業标準CJ/T3848-1995〔平面格栅除污機〕。
8.其他技術說明
8.1出廠檢測與驗收
每台設備經檢查試驗合格,并附有産品合格證、使用維護說明😝書、外購件的質保書和合格證。
設備出廠前,在廠内進行整機空載試運轉,檢驗項目應包括:外👌觀檢查、各種材料的檢驗、齒耙額定載荷的檢測、鏈條各鏈闆與銷軸的連接檢查、機座的焊接和緊固件連接的檢查、噪聲的檢測、以及其他項目的檢測。
8.2現場安裝與驗收
GSHZ機械格栅除污機工作原理
GSHZ機械格栅除污機工作原理
8.2.1設備到現場後,我方的技術代表到工作現場負責安👨🏻🏭裝。
8.2.2在全部設備安裝後,我方負責進行運行調試和現場測試,并進行工作現場培訓。調試後,清污機空轉試驗不少于4小時。測試内容及測試結果滿足标書的各項技術要求,并買方的認可。測試記錄交予買方。如測試結果不符合要求,我方負責免^費更換。現場測量工具由我方自備。
8.3銘牌與标志
銘牌固定在明顯的位置。銘牌内容如下:
設備名稱、設備型号、主要技術參數、電機功率、電壓等級、出廠日期、出廠編号等。
銘牌裝在設備合适、顯著的位置上。
8.4 運輸、包裝
我方保證運輸過程中設備均有牢固的包裝,防腐👯🏾♂️層不會損壞,确保設備到達交貨地點。
8.5耗材和工具
我方提供設備中必要的随機耗材、工具,并按質保👱🏼♂️期内的😈用量🔞列出耗材的名稱、數量,并按此内容供貨
機現場安裝效果圖
