QJB-W型混合液或流泵-南京蘭江泵業有限公司

  • 産品列表PRODUCTS LIST

    首頁 >産品中心 >>污泥回流泵 >QJB-W型混合液或流泵

    QJB-W型混合液或流泵

    簡要描述:

    溫度監測——電機繞組采用ZZ安全的過熱保護工藝,一旦由👱🏼‍♂️于😁電☠️機👩‍🍼過載,介質溫度過高或其他原因造
    成過熱,溫度傳感器會在溫度超過許用溫度極限以前及時發出報警信号或自動關閉水泵

    分享到: 1
    在線留言
    QJB-W型混合液或流泵

    一、QJB-W型潛水污泥回流泵簡介:

    QJB-W型潛水污泥回流泵爲二級污水處理廠混合液回流🔞、反🛌🏻硝化脫氮的設備。亦可用于地面排水、灌溉和廢水處理⛹🏻‍♀️過程中再

    循環等需要微揚程、大流量的場所。

    二、QJB-W型潛水污泥回流泵的使用條件:

    1、連續運行時,介質溫度不高于40℃;

    2、介質PH值爲6-9;

    3、大潛入深度10m。


    三、QJB-W型潛水污泥回流泵的型号意義:


    QJB-W型潛水污泥回流泵的型号意義


    四、QJB-W型潛水污泥回流泵的結構特點:


    1、按微揚程、大流量專門設計,效率高;

    2、按抗堵塞、抗纏繞專門設計,使用可靠;

    3、采用新的密封材料,可以使泵安全連續運行10000小時以上;

    4、結構緊湊,安裝、維修方便;

    5、主機采用澆鑄成型結構,體積小、精度高、耐腐蝕、無噪音👩‍🍼。


    五、QJB-W型潛水污泥回流泵性能參數表:


    QJB-W型潛水污泥回流泵性能參數表


    六、QJB-W型潛水污泥回流泵的性能曲線圖:


    QJB-W型潛水污泥回流泵的性能曲線圖

    QJB-W型潛水污泥回流泵的性能曲線圖

    QJB-W型潛水污泥回流泵的性能曲線圖


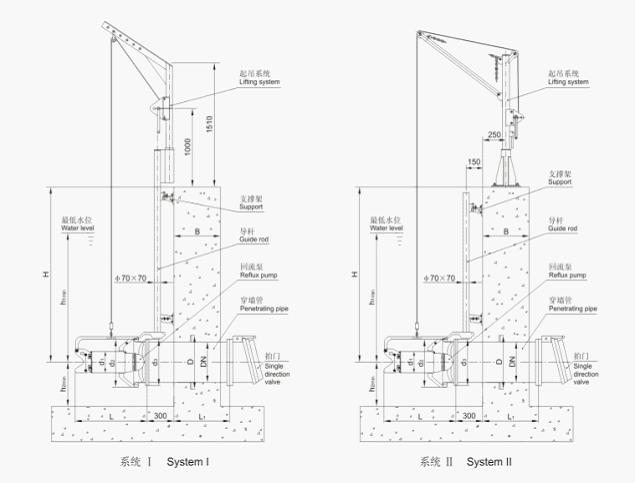
    七、QJB-W型潛水污泥回流泵的安裝說明、安裝示意圖及👹安裝尺😺寸💌:


    1、回流泵采用自動耦合安裝系統,在無需排水的狀💞況😁下,不用任何機械拆卸便可迅速提升,安裝方便快捷。

    2、本設備除穿牆管需預埋外,導杆、起吊杆均用膨脹螺栓與池🔞體連接,不需預埋件。

    3、預埋件和拍門由用戶自行采購安裝,回流泵有水平😘安裝和垂直安裝兩種方式供用戶選擇。

    QJB-W型潛水污泥回流泵的安裝示意圖
    QJB-W型潛水污泥回流泵的安裝尺寸

    聯系人
    在線客服
    掃碼關注我們
    用心服務 成就你我