南京WLS型無軸螺旋輸送機-南京蘭江泵業有限公司

  1. 産品列表PRODUCTS LIST

    南京WLS型無軸螺旋輸送機

    簡要描述:

    WLS型無軸螺旋輸送機被廣泛應用于市政污水處理👩‍🍼和工業生産等領域。WLS型無軸螺旋輸送機被設計成無軸的,U型輸送槽是封閉的但上蓋可以打開

    分享到: 1
    在線留言
    南京WLS型無軸螺旋輸送機

    WLS型無軸螺旋輸送機
    WLS型無軸螺旋輸送機
    産品簡介:
    WLS型無軸螺旋輸送機 被廣泛應用于市政污水處理和工業生産等領域。 WLS型無軸螺旋輸送機 被設計成無軸的,U型輸送槽是封閉的但上蓋可以打開😘。 因此,特别适合用于輸送有污染的、讨厭氣味👋的、危險的、架橋的以及清潔的物料。 WLS型無軸螺旋輸送機 是通過一個強力旋轉鋼質螺旋來輸送物 料,能有效傳送幹燥的、潮濕的、有粘性的、粉末狀的、粗糙的物料。 WLS型無軸螺旋輸送機 的設計能有效地防止堵塞和纏繞物的影響。這種🏃🏿‍♀️‍➡️設計 使輸送機更方便地輸送不同尺寸的物料。
    使用範圍:
    WLS型無軸螺旋輸送機 主要适用于污水處理廠輸送格栅栅渣、污泥脫水🔞機的泥餅等等。
    産品型号說明:
    WLS型無軸螺旋輸送機型号說明
    特點:
    1、構造簡單,輸送槽中無軸承,物料輸送流暢;
    2、整個輸送過程在封閉的輸送槽中進行,物料不會外溢,避免二次污染;
    3、無軸螺旋體采用特殊加工工藝整體成型,一次成型長度超過2.5米;
    4、低速運行,噪音小,能耗低,免維護。
    安裝形式:
    标準型爲地面固定水平安裝式或傾斜安裝式,也可按用戶要💞求提供吊挂式、地面和吊挂混合固定傾斜式、移👽動式☠️(可繞進料口軸線回轉)及其它特殊安裝方🤑式。
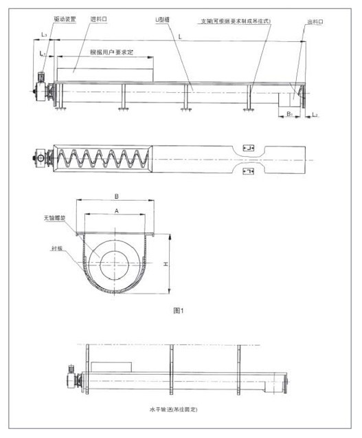
    構造及輸送過程:
    WLS型無軸螺旋輸送機由無軸螺旋、U型槽、襯闆、蓋闆、進出口和驅動🙂‍↕️裝置組成。物料由輸入,經螺旋推動後由出口輸🤶🏾出。
    WLS型無軸螺旋輸送機結構
    主要性能參數:
    WLS型無軸螺旋輸送機性能參數

    聯系人
    在線客服
    掃碼關注我們
    用心服務 成就你我